ASIAN TAKE AWAY
Luogo: Lugano, SVIZZERA
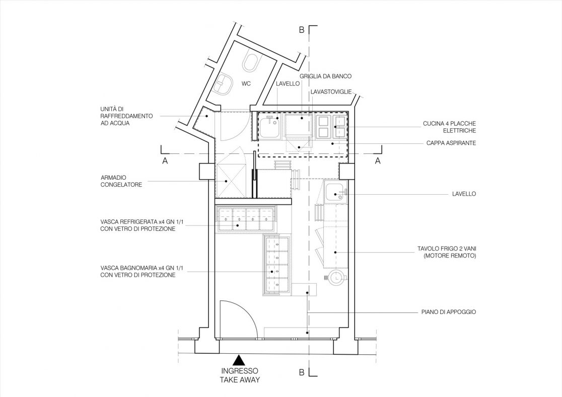
Tipologia: Take away
Superficie costruita: 18 mq
Stato: Completato
Anno: 2018
Il progetto per il nuovo take away sito in via Ariosto 6 a Lugano, propone un nuovo concetto di interni in linea con la nuova cucina di tipo asiatico.
Il locale, pur mantenendo sempre la stessa destinazione a take away, si rinnova sia nella tipologia di cucina con prodotti tipici della tradizione asiatica, sia negli interni tramite nuovi trattamenti materici e cromatici delle pareti (intonaco, piastrelle).
Nella cultura orientale, gli interni hanno un posto di grande rillievo per cui, attraverso il progetto, vengono interpretati secondo criteri precisi in grado di portare armonia e serenità nel piccolo spazio di 18 mq.
L’essenzialità, la pulizia delle forme e la sensazione di ordine geometrico e libertà, sono le principali caratteristiche dell’arredamento orientale, molto vicino allo stile minimal, le quali vengono mescolate al concetto di cucina occidentale attraverso il trattamento ceramico delle pareti. Infatti il progetto ripropone la piastrella bianca diamantata (con angoli smussati) tipica delle vecchie cucine dando al cliente la sensazione di entrare in una fabbrica del mangiare.
Servizi
- Concept
- Layout funzionali
- Progetti architettonici
- Interior design
- Domande di costruzione
- Direzione architettonica









