AMMAR BUILDING
Luogo: Mendrisio, SVIZZERA
Tipologia: Commerciale e residenziale
Superficie costruita: 4’697 mq
Stato: In corso
Anno: 2021
Il progetto si sviluppa in uno degli spazi urbani più importanti di Mendrisio, nel raccordo tra via Stefano Franscini e via Beroldingen; un punto nodale tra la stazione ferroviaria, il distretto commerciale, i collegamenti extraurbani e il centro città.
Proprio per la sua posizione strategica anche in prossimità del centro storico che lo vede come porta d’ingresso alla città vecchia, l’intervento vuole essere sia la sperimentazione di un nuovo linguaggio architettonico in armonia con il contesto, sia un luogo di grande attrattiva da vivere in ogni sua parte dagli utenti pubblici e privati.
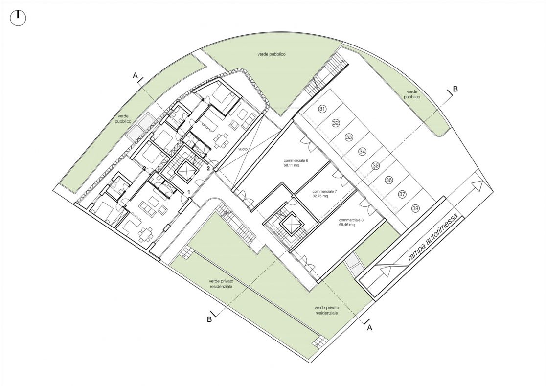
Il concept di progetto prevede la rotazione di due blocchi edilizi lungo le vie adiacenti, il blocco 1 lungo via Franscini ed il blocco 2 lungo via Beroldingen. Gli spazi commerciali previsti nel livello inferiore di ciascun blocco e le aree verdi annesse, generano incontro e creano occasioni per nuove relazioni, permettendo alla comunità di essere parte integrante del progetto, favorendo così la riqualificazione del tessuto urbano.
Soprattutto il verde, in tutti i suoi aspetti (cromatici, naturali e sostenibili), mette al centro il progetto architettonico riducendo l’impatto della costruzione sull’esistente, agendo positivamente anche a livello urbanistico diventando un’esperienza piacevole e accogliente per i suoi abitanti.
La vegetalizzazione di facciate e tetti rappresentano un contributo in favore della biodiversità locale. Vegetalizzando gli edifici, inoltre, è possibile migliorare l’isolamento termico e la qualità dell’aria.
Nelle aree verdi previste, quella di svago all’interno dei due blocchi protetta dai rumori esterni e dal traffico della viabilità, quella pubblica in prossimità degli spazi commerciali e quella nella zona relativa ai posteggi, saranno piantumate alberature autoctone per contribuire alla salvaguardia della biodiversità e piante ornamentali.
L’obiettivo della proposta di progetto è di raggiungere una nuova espressione architettonica offrendo a Mendrisio un nuovo lessico di codici visuali e tecnici che si traducono in “natura artificiale” e di instaurare una connessione equilibrata tra artificio e natura.
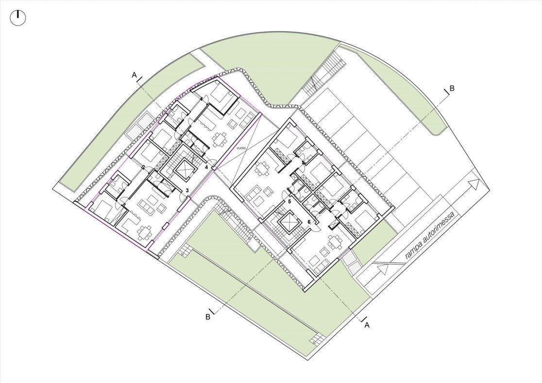
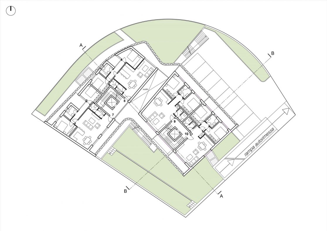
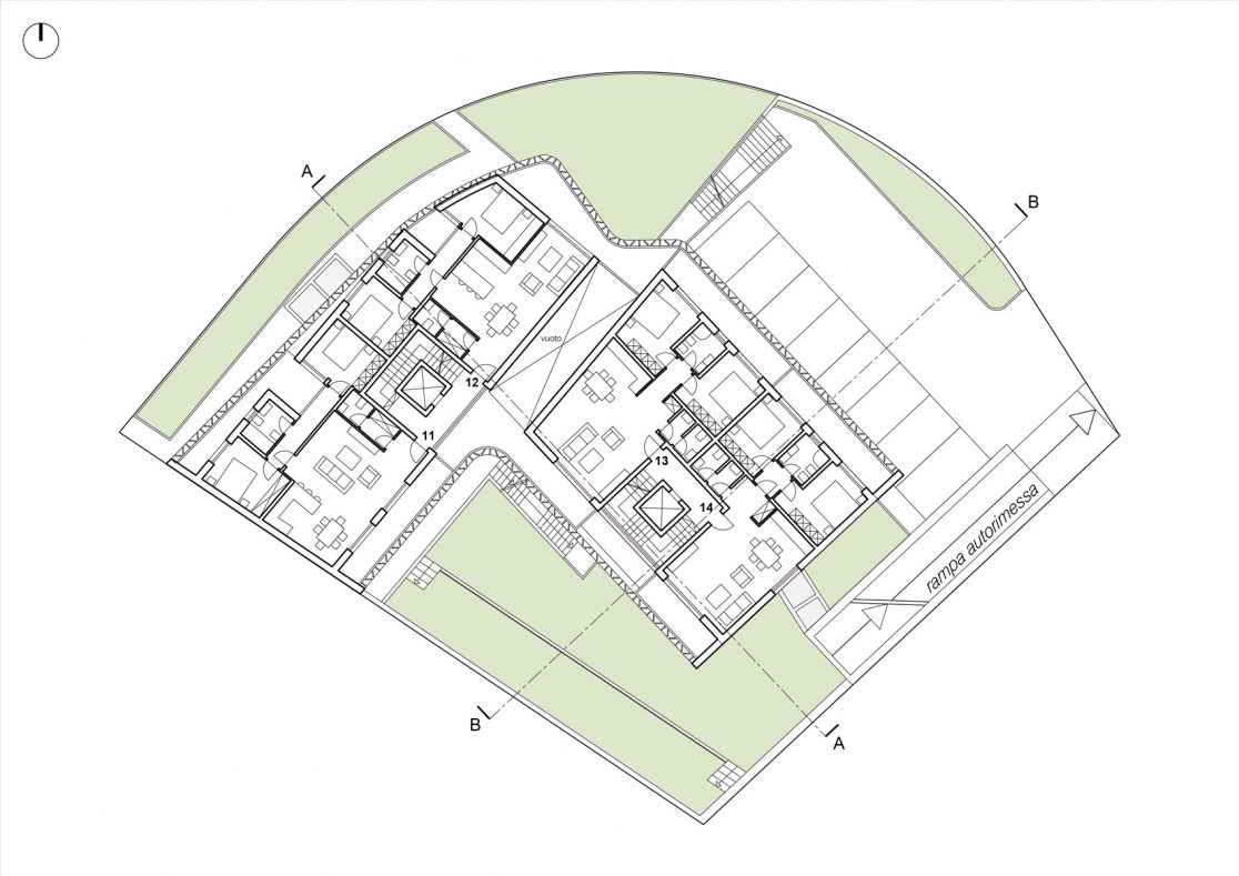
L’edificio è caratterizzato da due blocchi sfalsati di circa 3m che seguono l’orografia del terreno, ognuno di 5 livelli fuori terra con le attività commerciali al primo livello e le residenze ai piani superiori.
Le destinazioni commerciali prevedono quelle funzioni atte a garantire convivialità, luoghi d’incontro come bar, gelaterie, ristoranti ed attività sostenibili pensate per consentire agli abitanti di appropriarsi degli spazi secondo le loro esigenze e di pensare al futuro privilegiando delle sistemazioni flessibili ed evolutive. È previsto quindi l’allestimento di zone di incontro e di spazi pubblici adatti alle esigenze sia dei giovani che degli anziani, l’organizzazione di processi partecipativi per rafforzare l’identità e il senso di appartenenza e la creazione di bar, negozi e/o servizi di prossimità.
Il sistema di rivestimento innovativo di facciata è composto da lamelle verticali verdi di differente cromia e con diversa inclinazione al fine di creare dinamicità visiva ed un effetto di chiari/scuri in relazione al movimento del sole. Questi elementi, in aggiunta, avranno la funzione di ripari fonici e garantiranno permeabilità visiva dall’interno verso l’esterno e privacy alle funzioni interne.
L’impatto cromatico è interrotto orizzontalmente da linee marcapiano in metallo che circoscrivono i due blocchi, segnando una forte dinamicità formale e fluidità legata al concetto di movimento, in richiamo ai binari dell’adiacente ferrovia nelle linee continue e morbide.
I piani interrati e seminterrati sono invece destinati a cantine, depositi ed all’autorimessa.
L’accesso veicolare avviene da via Beroldingen, in corrispondenza del blocco 2 sul lato Est, dal quale si raggiunge l’autorimessa interrata ed i posteggi esterni di pertinenza agli spazi commerciali. Al piano autorimessa sono inoltre previsti i locali tecnici per l’impianto di riscaldamento ed elettrico.
L’accesso pedonale ai due blocchi avviene dalla galleria centrale del piano terra la quale conduce al corpo scala di ogni blocco.
Nei livelli superiori agli spazi commerciali, sono previsti 16 appartamenti, 8 per ogni blocco dotati di ampie terrazze che circoscrivono l’intero perimetro architettonico conferendo grande dinamicità formale e visiva.
Nella copertura del blocco 1 che confina con via Franscini, è prevista una terrazza condominiale mentre in quella del blocco 2 è prevista una terrazza attrezzata per l’installazione di pannelli fotovoltaici e impianti vari.
L’edificio è considerato come un “sistema unico” ovvero costruito coerentemente con tutte le componenti edili, impiantistiche e di involucro attraverso un adeguato isolamento, al fine di rispettare i requisiti dello standard Minergie-P. La costruzione sarà a tal fine ecologica e sarà dotata di tecnologie innovative che ottimizzano l’efficienza energetica, la qualità della costruzione e l’utilizzo di energie rinnovabili.
Servizi
- Concept
- Layout funzionali
- Progetti architettonici
- Interior design
- Domande di costruzione
- Direzione architettonica
















