BLACK BOX – Luxury Car Storage
Location: Grancia, SVIZZERA
Type: Car storage facility
Built area: 2’715 mq
Status: Under construction
Year: 2025
Located in Grancia, a small municipality in the district of Lugano in the Canton of Ticino, Switzerland, the project benefits from a strategic position within a natural and urban context. Its proximity to Lugano makes it a sought-after area both for residential use and as a commercial and service hub, hosting one of the largest shopping centers in Ticino.
Black Box introduces a new concept of space dedicated to luxury car enthusiasts — a rational and minimalist architectural form defined by an elegant interplay of concrete and metal, creating a sophisticated and contemporary atmosphere. Black Box redefines the idea of a garage, offering not only a secure haven for car collections but also a bespoke and immersive experience for each owner.
The project is organized over three main levels:
- Level 0
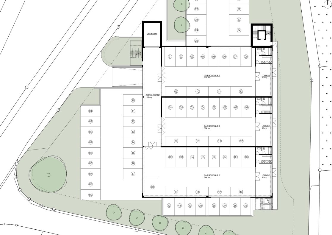
This level includes the access ramp and both covered and uncovered parking areas (25 spaces). The main volume is suspended on walls and columns, keeping the interior parking area partially open on the sides. Service functions are concentrated along the north side: technical rooms, storage, and a caretaker’s space are located near the car lift shaft defining the building’s north-west corner. The north-east corner features the main staircase and elevator block, which connects all levels. Two additional emergency stairwells are positioned at the opposite corners (north-west and south-east). This level also includes a dedicated car wash station. - Level 1
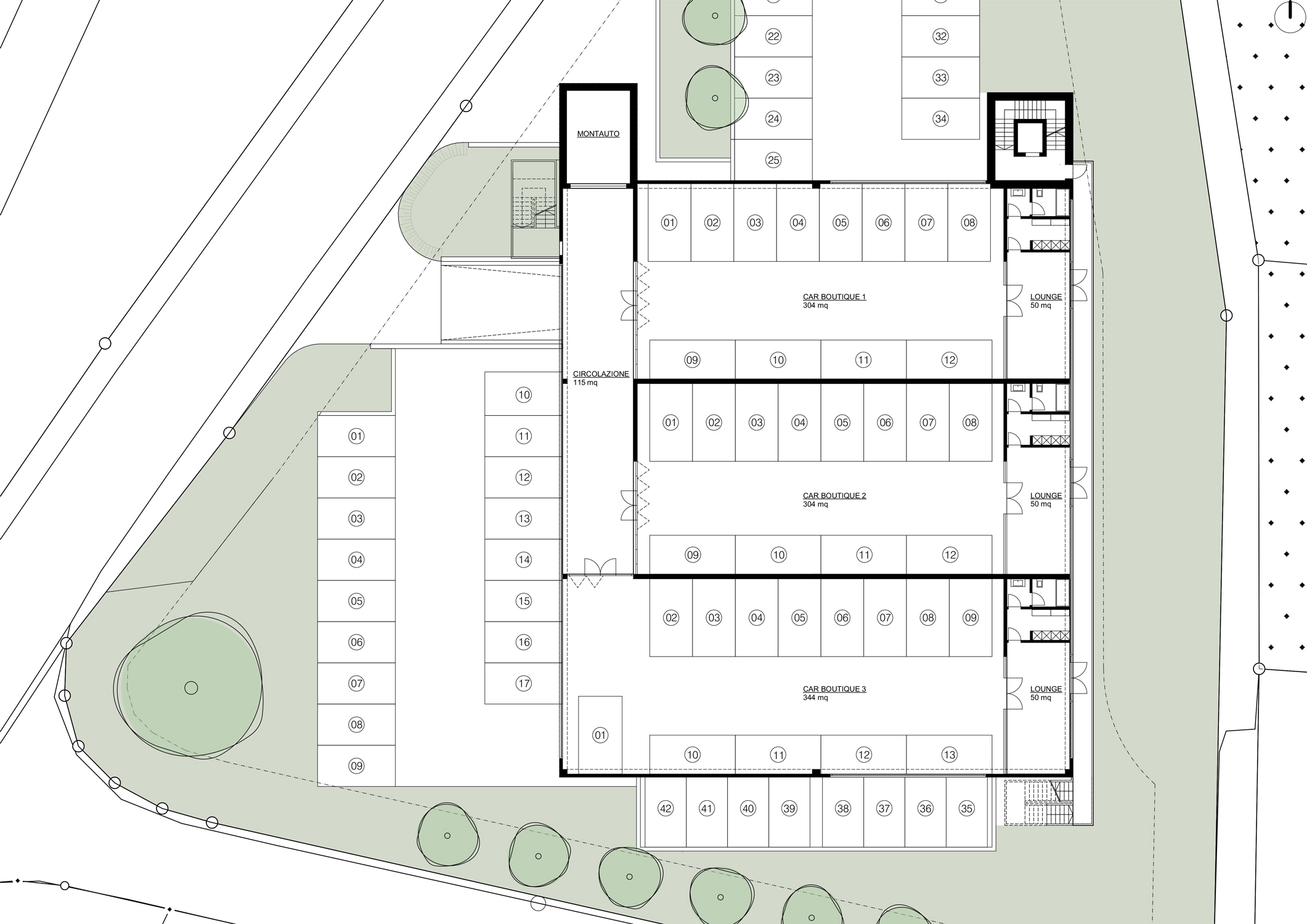
Designed for exhibition and commercial use, Level 1 is divided into three units accessible either from the circulation area along the west side or from the corridor on the opposite side. Each unit comprises an exhibition area designed to host 12–13 cars, as well as a commercial space with a service room and restroom. All areas benefit from generous natural light and ventilation, with a clear ceiling height of 4.00 meters. - Level 2
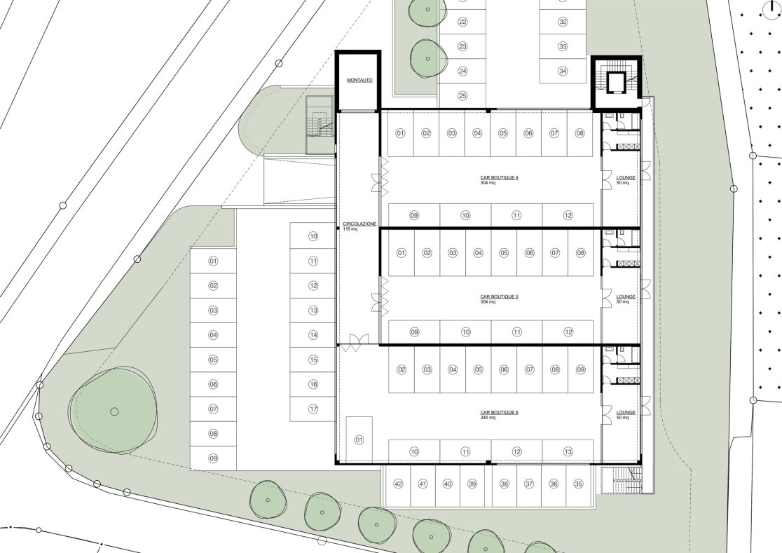
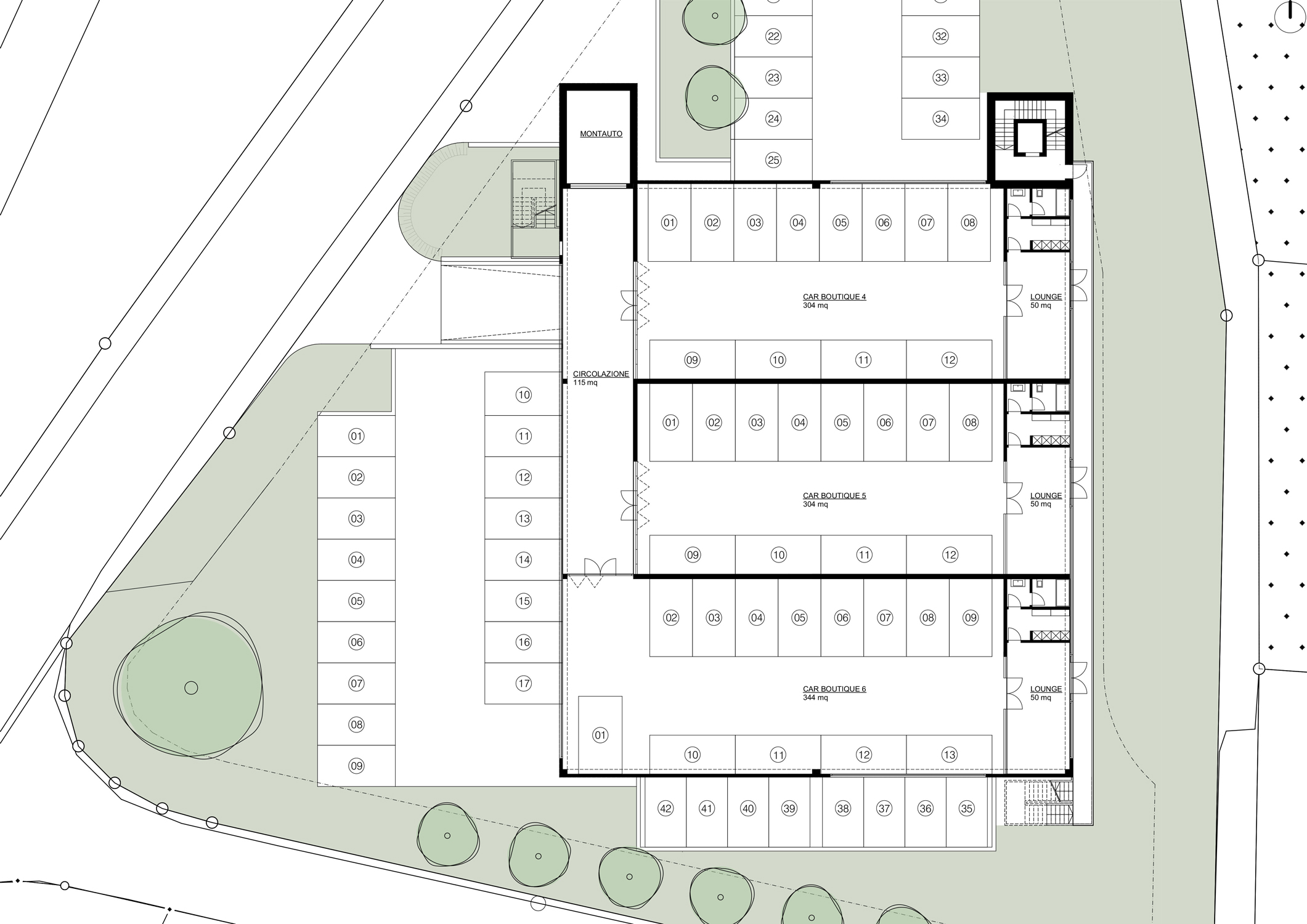
The second floor mirrors the layout and functions of Level 1. As with the lower level, all spaces enjoy abundant natural light and ventilation, with a clear height of 4.00 meters. - Roof
The flat roof is entirely covered with a green surface that ensures the building integrates harmoniously into its surroundings while providing environmental benefits. The green roof regulates rainwater flow, purifies the air, reduces external heat, stabilizes indoor temperatures, conserves energy, and promotes biodiversity.
The design concept originates from the desire to create a suspended volume defined by minimalist architecture and pure geometry — an expression of lightness and strong visual identity. The façade, clad with modular polycarbonate panels and LED lighting integrated into insulated sandwich panels with mineral wool, provides excellent light transmission, thermal performance, and a refined aesthetic effect.
Italian version
Luogo: Grancia, SVIZZERA
Tipologia: Deposito auto
Superficie costruita: 2’715 mq
Stato: In corso
Anno: 2025
Il progetto si sviluppa a Grancia, un piccolo comune situato nel distretto di Lugano, nella regione del Canton Ticino, Svizzera. La località si distingue per la sua posizione strategica e il contesto naturale e urbano che lo caratterizza. La sua vicinanza a Lugano ne fa una località apprezzata sia come zona residenziale sia come area commerciale e di servizi, includendo uno dei più grandi centri commerciali del Ticino.
Black Box è un nuovo concetto di spazio dedicato agli appassionati di auto di lusso, un’architettura razionale e minimalista caratterizzata da un’elegante combinazione di cemento e metallo che crea un’atmosfera sofisticata e contemporanea. Black Box ridefinisce il concetto di garage offrendo un rifugio sicuro per la propria collezione ed un’esperienza unica su misura per ogni appassionato.
Il progetto si articola su 3 livelli principali:
- Livello 0, composto da una rampa di accesso per le auto e dalle relative aree di posteggio coperte (25 posti) e scoperte. Il blocco edilizio è sospeso su setti e colonne e mantiene l’area di posteggio interna parzialmente aperta sui lati. In questo livello, le funzioni di servizio sono concentrate sul lato nord: i locali tecnici, di deposito e del custode si trovano in prossimità del volume della colonna del montauto che definisce l’angolo nord-ovest dell’edificio. Analogamente, l’angolo nord-est è definito dalla presenza del blocco scale/ascensore principale dell’edificio, che collega il piano terreno ai due livelli superiori. L’edificio prevede altri due blocchi scale di sicurezza agli angoli opposti nord-ovest e sud-est. A questo livello è inoltre prevista una postazione per il lavaggio delle auto.
- Livello 1, di carattere espositivo e commerciale, è suddiviso in tre comparti raggiungibili dall’area di circolazione che si sviluppa, a partire dal montauto, lungo il lato ovest del piano, o dal corridoio posizionato lungo il lato opposto. Ciascuno dei tre comparti è costituitoda un’area espositiva, concepita per ospitare 12 o 13 auto, e da un’area commerciale con locale di servizio e bagno. Tutti i locali hanno ampia illuminazione e ventilazione naturale ed hanno altezza interna netta di 4.00m.
- Livello 2, identico al livello 1 in quanto a funzioni e organizzazione degli spazi, ne ripropone la pianta. Anche a questo livello, tutti i locali hanno ampia illuminazione e ventilazione naturale ed hanno altezza interna netta di 4.00m.
- La copertura piana è prevista interamente con una superficie sistemata a verde che favorisce l’inserimento armonioso del blocco edilizio nel contesto presentandoanche molti vantaggi di carattere ambientale: il tetto verde permette infatti di regimentare il flusso dell’acqua piovana, purificare l’aria, ridurre la temperatura dell’ambiente esterno e regolare la temperatura all’interno dell’edificio, risparmiare energia e incoraggiare la biodiversità.
L’idea di progetto si sviluppa dalla volontà di creare un volume sospeso caratterizzato da un’architettura minimale e da una semplice geometria, in grado di esprimere leggerezza e forte impatto visivo. La scelta del rivestimento di facciata con elementi modulari in policarbonato e luci led applicate internamente sui pannelli sandwich in lana di roccia, assicurano un elevato valore di trasmissione della luce, un’ottima proprietà termoisolante, unite a un elegante effetto estetico.


































